
स्टील संरचना गटर एक इमारत की छत जल निकासी प्रणाली का एक महत्वपूर्ण घटक है। उनका प्राथमिक कार्य छत से वर्षा जल को इकट्ठा करना है, इसे ऊर्ध्वाधर पाइपों में निर्देशित करता है, और फिर इसे बाहरी जल निकासी प्रणाली में डिस्चार्ज करता है, इसे सीधे दीवारों को मिटाने या भिगोने वाली नींव से रोकता है। Liweiyuan के उत्पाद डिजाइन और स्थापना को उच्च शक्ति और हल्के वजन की विशेषता है, जिससे चिकनी जल निकासी और असाधारण स्थायित्व सुनिश्चित होता है।
स्टील संरचना गटर एक इमारत की छत जल निकासी प्रणाली का एक महत्वपूर्ण घटक है। उनका प्राथमिक कार्य छत से वर्षा जल को इकट्ठा करना है, इसे ऊर्ध्वाधर पाइपों में निर्देशित करता है, और फिर इसे बाहरी जल निकासी प्रणाली में डिस्चार्ज करता है, इसे सीधे दीवारों को मिटाने या भिगोने वाली नींव से रोकता है। Liweiyuan के उत्पाद डिजाइन और स्थापना को उच्च शक्ति और हल्के वजन की विशेषता है, जिससे चिकनी जल निकासी और असाधारण स्थायित्व सुनिश्चित होता है।
Liweiyuan की स्टील स्ट्रक्चर गटर संक्षारण-प्रतिरोधी और प्रभाव प्रतिरोधी सामग्री से बना है।
हमारा उत्पाद हॉट-डिप जस्ती है, उत्कृष्ट संक्षारण प्रतिरोध, कम लागत और एक लंबी सेवा जीवन की पेशकश करता है। 1.5-2.5 मिमी की मोटाई में उपलब्ध है, यह अधिकांश अनुप्रयोगों के लिए उपयुक्त है।
स्टेनलेस स्टील से बना, यह उत्पाद संक्षारण प्रतिरोध प्रदान करता है और विशेष रूप से तटीय या आर्द्र वातावरण के लिए उपयुक्त है। 1.0-2.0 मिमी की मोटाई में उपलब्ध, यह एक उच्च कीमत लेकिन एक लंबी सेवा जीवन प्रदान करता है।
हमारे रंग-लेपित स्टील उत्पाद जस्ती स्टील पर आधारित होते हैं, जो जंग प्रतिरोध और सजावटी प्रभावों के लिए एक मौसम प्रतिरोधी कोटिंग के साथ लेपित होते हैं, जैसे कि पॉलिएस्टर या फ्लोरोकार्बन, दोनों। 1.2-2.0 मिमी की मोटाई में उपलब्ध है, वे इमारतों के लिए उपयुक्त हैं जो उच्च स्तर की सौंदर्यशास्त्र अपील की आवश्यकता होती हैं।
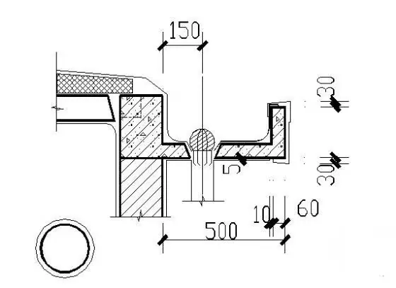
स्टील स्ट्रक्चर गटर के संरचनात्मक रूप को छत ढलान और ईव्स डिज़ाइन के लिए अनुकूलित किया जाना चाहिए। सामान्य प्रकारों में यू-आकार और वी-आकार शामिल हैं। स्थापना प्रक्रिया इस प्रकार है:
हमारे स्टील स्ट्रक्चर गटर उन्हें स्टील स्ट्रक्चर के ईव्स बीम्स या पर्लिंस के लिए सुरक्षित करने के लिए एंगल स्टील गटर कोष्ठक का उपयोग करते हैं। ब्रैकेट स्पेसिंग 600-1000 मिमी है जो गटर में तनाव वितरण को भी सुनिश्चित करने के लिए है।
तैयार गटर पूर्व-आकार के होते हैं और कनेक्टर्स या वेल्डिंग का उपयोग करके साइट पर जुड़े होते हैं। गटर और छत अलंकार के बीच जंक्शन पर सीलेंट की आवश्यकता होती है।
हम छत की अलंकार के ऊपर एक चमकती स्थापित कर सकते हैं। नाली के निचले छोर को छत की अलंकार के नीचे रखा जाना चाहिए और सीलेंट के साथ सील किया जाना चाहिए। नाली के छेद के नीचे, मुख्य रूप से बारिश के पानी राइजर के कनेक्शन के लिए नाली के छेद प्रदान किए जाने चाहिए।
हमारी स्टील संरचना गटर निर्माण प्रक्रिया में ड्राइंग आयामों, झुकने, पेंटिंग, तैयार उत्पाद निरीक्षण, पैकेजिंग और शिपिंग के अनुसार कटिंग शामिल है। Liweiyuan के स्टील स्ट्रक्चर गटर को जंग प्रतिरोध, चिकनी जल निकासी और स्थायित्व सुनिश्चित करने के लिए डिज़ाइन और स्थापित किया गया है, जो कुशल जल निकासी सुनिश्चित करता है।